Lot 676 Florina Road, Katherine, NT 0850
Sold Price Not Disclosed (20 May 2021)
Private Rural Living Only 15 Minutes From Town
The Phone Code for this property is: 38682. Please quote this number when phoning or texting.
Beautiful 5 bedroom + 2 bathroom family home on 24 acres of land ready to move into.
Perfect for family wanting peaceful, private rural living, only 10.6km from the post office.
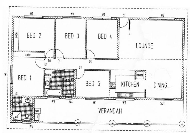
Open plan lounge, dining and kitchen.
The large windows allow you to admire the gardens and pool area from the generously proportioned living areas.
Garbage collection and School bus service available.
All living areas and shed certified.
Spacious home with slate floors and high ceilings
Open plan lounge, dining and kitchen with dual access
Modern kitchen with granite bench top and quality Miele appliances including dishwasher, oven with induction stove top and microwave.
Built-in robes
Split-system air conditioning throughout
Master bedroom with en suite
5th bedroom currently used as a study
Block rendered open plan living
2 1/2m wide verandahs front and back
Tiled roof and insulation maintains interior temperatures to provide comfort
9m x 12m shed with cement floor and additional 9 x 12m shed with storage loft.
Steel constructed round-yard and loading ramp perfect for horses and cattle.
5 fenced paddocks with water access ready for livestock.
30,000 gallon rainwater tank provides rainwater to the home and a bore is also equipped to provide automatic reticulation to the lawns and garden.
Solar hot water system
1 x 3 phase 5 kw solar panel inverter
11 metre concrete saltwater swimming pool with large all seasons entertaining area, perfect for tropical living
4 car carport
2 1/2 metre verandah front and back Circular driveway
Automatic irrigation to landscapes gardens and lawn
Its hard to fault this charming family home.
Disclaimer:
Whilst every care has been taken to verify the accuracy of the details in this advertisement, For Sale By Owner (forsalebyowner.com.au Pty Ltd) cannot guarantee its correctness. Prospective buyers or tenants need to take such action as is necessary, to satisfy themselves of any pertinent matters.
Beautiful 5 bedroom + 2 bathroom family home on 24 acres of land ready to move into.
Perfect for family wanting peaceful, private rural living, only 10.6km from the post office.
Open plan lounge, dining and kitchen.
The large windows allow you to admire the gardens and pool area from the generously proportioned living areas.
Garbage collection and School bus service available.
All living areas and shed certified.
Spacious home with slate floors and high ceilings
Open plan lounge, dining and kitchen with dual access
Modern kitchen with granite bench top and quality Miele appliances including dishwasher, oven with induction stove top and microwave.
Built-in robes
Split-system air conditioning throughout
Master bedroom with en suite
5th bedroom currently used as a study
Block rendered open plan living
2 1/2m wide verandahs front and back
Tiled roof and insulation maintains interior temperatures to provide comfort
9m x 12m shed with cement floor and additional 9 x 12m shed with storage loft.
Steel constructed round-yard and loading ramp perfect for horses and cattle.
5 fenced paddocks with water access ready for livestock.
30,000 gallon rainwater tank provides rainwater to the home and a bore is also equipped to provide automatic reticulation to the lawns and garden.
Solar hot water system
1 x 3 phase 5 kw solar panel inverter
11 metre concrete saltwater swimming pool with large all seasons entertaining area, perfect for tropical living
4 car carport
2 1/2 metre verandah front and back Circular driveway
Automatic irrigation to landscapes gardens and lawn
Its hard to fault this charming family home.
Disclaimer:
Whilst every care has been taken to verify the accuracy of the details in this advertisement, For Sale By Owner (forsalebyowner.com.au Pty Ltd) cannot guarantee its correctness. Prospective buyers or tenants need to take such action as is necessary, to satisfy themselves of any pertinent matters.
Features
Air Conditioning, Broadband, Built-ins, Dishwasher, Ensuite, Fully Fenced, Living Area, Modern Bathroom, Modern Kitchen, Pay TV Enabled, Renovated Bathroom, Renovated Kitchen, Study, Entertainment Area, Garden, Garden Shed, Level Lawn, Pet Friendly, Rainwater Tank, Shower Facilities, Solar Hot Water, Solar Panels, Spa Bath/Jacuzzi, Storage Area, Swimming/Lap Pool, Workshop, Quiet Location
Need a Home Loan?
Get pre-approved for a home loan within 48 hours. Click Here or more information.
- Last 24 Hours0
- Last 7 Days1
- Last 30 Days11
Views
Contact the Owner
Phone or Text: 0488 847 018
Enter Phone Code: 38682
Enter Phone Code: 38682
"*" indicates required fields