21 Antonino Drive, Rosebery, NT 0832
Sold Price: 540,000 (09 Nov 2018)
HOME - view now and make it yours
Sometimes the difference between a House & a Home can be as simple as its street appeal. With manicured lawns, neat garden beds, double wooden feature front door, double lock up garage and side access for pets & toys; this property is a HOME.
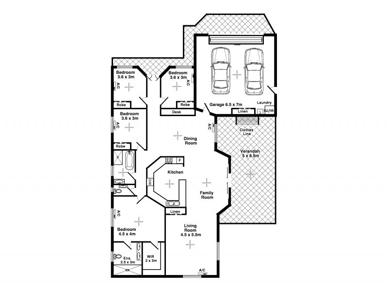
A unique layout through-out & its creativity compliments each family members needs, including 2 options for the dining area with a bonus built in office & wall storage mount.
The kitchen will surprise you by its features & quality for your full enjoyment. Ample amount of self soft closing draws, beautiful stone bench top, built in stainless steel cooking appliances, gas cooktop, Bosch dishwasher this is the hub of the home with a view to the exterior entertainment area.
A beautiful suede like painted featured living area completes one end of the home. Behind the kitchen is a well placed bathroom with separate shower, bath tub plus a separate toilet.
The master suite is a spacious 4.5m x 4m with add on 2m x 3m walk in wardrobe that will take something else to fill up! A spacious 2.5m x 3m ensuite with dual basin & duel shower heads. Complete with exhaust fan and ceiling fan will keep you cool after your shower on the hottest days!
The property is tiled & air conditioned throughout, the remaining 3 bedrooms all have built in robes.
This home is looking for its new owners to move right in and enjoy entertaining friends and family and is close to all amenities, schools, child care centres and several parks close by. From the busy Executives to the growing family this house is for you!
The 270m2 home was built in 2009 on a 653m2 block. Complete with shed out the back for all your gardening storage.
Rates approx. $1,760 p.a.
To arrange a viewing please contact anytime.
Disclaimer:
Whilst every care has been taken to verify the accuracy of the details in this advertisement, For Sale By Owner (forsalebyowner.com.au Pty Ltd) cannot guarantee its correctness. Prospective buyers or tenants need to take such action as is necessary, to satisfy themselves of any pertinent matters.
A unique layout through-out & its creativity compliments each family members needs, including 2 options for the dining area with a bonus built in office & wall storage mount.
The kitchen will surprise you by its features & quality for your full enjoyment. Ample amount of self soft closing draws, beautiful stone bench top, built in stainless steel cooking appliances, gas cooktop, Bosch dishwasher this is the hub of the home with a view to the exterior entertainment area.
A beautiful suede like painted featured living area completes one end of the home. Behind the kitchen is a well placed bathroom with separate shower, bath tub plus a separate toilet.
The master suite is a spacious 4.5m x 4m with add on 2m x 3m walk in wardrobe that will take something else to fill up! A spacious 2.5m x 3m ensuite with dual basin & duel shower heads. Complete with exhaust fan and ceiling fan will keep you cool after your shower on the hottest days!
The property is tiled & air conditioned throughout, the remaining 3 bedrooms all have built in robes.
This home is looking for its new owners to move right in and enjoy entertaining friends and family and is close to all amenities, schools, child care centres and several parks close by. From the busy Executives to the growing family this house is for you!
The 270m2 home was built in 2009 on a 653m2 block. Complete with shed out the back for all your gardening storage.
Rates approx. $1,760 p.a.
To arrange a viewing please contact anytime.
Disclaimer:
Whilst every care has been taken to verify the accuracy of the details in this advertisement, For Sale By Owner (forsalebyowner.com.au Pty Ltd) cannot guarantee its correctness. Prospective buyers or tenants need to take such action as is necessary, to satisfy themselves of any pertinent matters.
Features
Air Conditioning, Bath, Built-ins, Dishwasher, Formal Lounge, Fully Fenced, Modern Bathroom, Modern Kitchen, Remote Garage, Study, Garden, Secure Parking, Close to Parklands, Close to Schools, Close to Shops, Close to Transport, Quiet Location, Prestige Property
Need a Home Loan?
Get pre-approved for a home loan within 48 hours. Click Here or more information.
- Last 24 Hours0
- Last 7 Days0
- Last 30 Days1
Views
Contact the Owner
Phone or Text: 0488 847 018
Enter Phone Code:
Enter Phone Code:
"*" indicates required fields