2/15 Yale Parade, Durack, NT 0830
Sold Price Not Disclosed (17 Jan 2015)
Modern 3 Bedroom Townhouse with Golf Course Views
This freshly presented, large two story, 3 bedroom townhouse has undergone a make over and is situated backing onto the golf course in the highly desirable suburb of Durack.
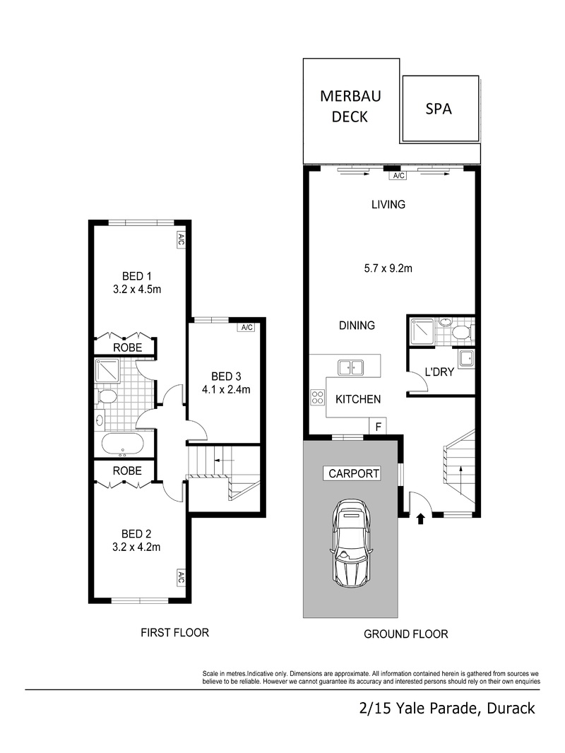
The interior boasts three spacious upstairs bedrooms, two of which have built in robes. Whilst the main bedroom offers sweeping golf course views and direct entrance to the main dual access bathroom.
This well maintained carpeted upper floor and staircase leads down to a massive ground level living area comprising a newly refurbished kitchen with plenty of storage and an open plan dining and living area all of which have just had beautiful new floors laid. This ground level also includes a separate internal laundry, 2nd bathroom and generous storage area under the stairs.
The dual glass sliding doors open directly onto a recently constructed Merbau deck and courtyard. This space features a large comfortable entertaining area, 6 seater heated spa and low maintenance garden. The courtyard also has rear gate, direct access to the surrounding golf course, picturesque lakes and kilometers of walking paths.
The front of the property comprises a grassed area, carport and drive way with room for one vehicle parked undercover and one parked in open space.
For under 500k this property won't last long so be quick.
Rental Estimate: $550-570pw
Disclaimer:
Whilst every care has been taken to verify the accuracy of the details in this advertisement, For Sale By Owner (forsalebyowner.com.au Pty Ltd) cannot guarantee its correctness. Prospective buyers or tenants need to take such action as is necessary, to satisfy themselves of any pertinent matters.
The interior boasts three spacious upstairs bedrooms, two of which have built in robes. Whilst the main bedroom offers sweeping golf course views and direct entrance to the main dual access bathroom.
This well maintained carpeted upper floor and staircase leads down to a massive ground level living area comprising a newly refurbished kitchen with plenty of storage and an open plan dining and living area all of which have just had beautiful new floors laid. This ground level also includes a separate internal laundry, 2nd bathroom and generous storage area under the stairs.
The dual glass sliding doors open directly onto a recently constructed Merbau deck and courtyard. This space features a large comfortable entertaining area, 6 seater heated spa and low maintenance garden. The courtyard also has rear gate, direct access to the surrounding golf course, picturesque lakes and kilometers of walking paths.
The front of the property comprises a grassed area, carport and drive way with room for one vehicle parked undercover and one parked in open space.
For under 500k this property won't last long so be quick.
Rental Estimate: $550-570pw
Disclaimer:
Whilst every care has been taken to verify the accuracy of the details in this advertisement, For Sale By Owner (forsalebyowner.com.au Pty Ltd) cannot guarantee its correctness. Prospective buyers or tenants need to take such action as is necessary, to satisfy themselves of any pertinent matters.
Features
Air Conditioning, Balcony/Patio/Terrace, Bath, Formal Lounge, Internal Laundry, Pay TV Enabled, Renovated, Courtyard, Entertainment Area, Garden, Level Lawn, Spa Bath/Jacuzzi, Close to Parklands, Quiet Location, Views, Golf Property
Need a Home Loan?
Get pre-approved for a home loan within 48 hours. Click Here or more information.
- Last 24 Hours0
- Last 7 Days0
- Last 30 Days0
Views
Contact the Owner
Phone or Text: 0488 847 018
Enter Phone Code:
Enter Phone Code:
"*" indicates required fields