7 Rose Court, Braitling, NT 0870
Sold Price: 470,000 (12 Dec 2025)
Sustainable, Modern, Secure and Very Low-Maintenance Home in a Great Location!
Please enquire here for a viewing ;)
Summer is coming, make sure you are in this very cool house with amazing pool!
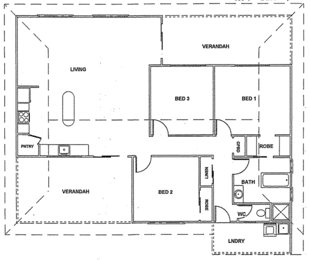
Welcome to your new lifestyle in this modern 3 bedroom, 1 bathroom home, in the north of Alice Springs! Built in 2003 by custom eco-friendly designer Skybuilt, this home offers effortless living with a perfect blend of functionality, sustainability, security, and style.
Property Features:
Polished concrete floors throughout - cool underfoot and easy to clean, ideal for Alice Springs' climate.
High ceilings and modern downlights for a bright and spacious feel.
Open-plan living connecting lounge, dining, kitchen and back verandah areas.
Brand new appliances in the spacious kitchen including oven, stovetop, and dishwasher.
Quality louvres and blinds on all windows to let in breezes and control light.
Fully reticulated native gardens - beautiful and easy to maintain whilst offering privacy.
Salt-chlorinated pool with a safety ledge, shaded by mature native trees in the afternoon.
Outdoor living made easy - entertain at the large verandah, beside the pool, which flows seamlessly from kitchen and living area.
Secure yet inviting - welcoming front verandah, privacy fencing, Crimsafe screens around the whole house, and commercial-grade hardwired security cameras.
Master bedroom with walk-in wardrobe, plus built-in cupboards throughout for ample storage.
Separate toilet to bathroom for added convenience.
Solarhart roof hot water system.
Four reverse-cycle air conditioners, all recently serviced plus ceiling fans throughout for year-round comfort.
Steel carport with high roof and power outlet - perfect for vehicles, caravans, or projects.
Sustainable & Smart Design:
North-facing orientation brings in warm winter sun and keeps out harsh summer heat.
Concrete floors and passive design keep the home cooler during the hotter months.
Steel frame, insulated exterior walls and modern finishes reduce maintenance and improve efficiency and longevity.
Location Highlights:
Just a 5 minute walk to local primary school and pre-primary, and 10 minute walk to daycare.
Easy walk to Head Street Oval, nature trails, and Telegraph Station.
Conveniently located near Northside IGA, Bunnings, and a short stroll to Sammy's Pizza.
This home is ideal for singles, couples, families, those new-to-Alice Springs as well as those looking to purchase from interstate and land in a location with all the amenities and comforts. If you are an investor, the property attracts a premium on its rent for its quality and the current high demand for rental properties.
Enquire today and make this modern Alice Springs retreat yours.
The Phone Code for this property is: 89096. Please quote this number when phoning or texting.
Disclaimer:
Whilst every care has been taken to verify the accuracy of the details in this advertisement, For Sale By Owner (forsalebyowner.com.au Pty Ltd) cannot guarantee its correctness. Prospective buyers or tenants need to take such action as is necessary, to satisfy themselves of any pertinent matters.
Summer is coming, make sure you are in this very cool house with amazing pool!
Welcome to your new lifestyle in this modern 3 bedroom, 1 bathroom home, in the north of Alice Springs! Built in 2003 by custom eco-friendly designer Skybuilt, this home offers effortless living with a perfect blend of functionality, sustainability, security, and style.
Property Features:
Polished concrete floors throughout - cool underfoot and easy to clean, ideal for Alice Springs' climate.
High ceilings and modern downlights for a bright and spacious feel.
Open-plan living connecting lounge, dining, kitchen and back verandah areas.
Brand new appliances in the spacious kitchen including oven, stovetop, and dishwasher.
Quality louvres and blinds on all windows to let in breezes and control light.
Fully reticulated native gardens - beautiful and easy to maintain whilst offering privacy.
Salt-chlorinated pool with a safety ledge, shaded by mature native trees in the afternoon.
Outdoor living made easy - entertain at the large verandah, beside the pool, which flows seamlessly from kitchen and living area.
Secure yet inviting - welcoming front verandah, privacy fencing, Crimsafe screens around the whole house, and commercial-grade hardwired security cameras.
Master bedroom with walk-in wardrobe, plus built-in cupboards throughout for ample storage.
Separate toilet to bathroom for added convenience.
Solarhart roof hot water system.
Four reverse-cycle air conditioners, all recently serviced plus ceiling fans throughout for year-round comfort.
Steel carport with high roof and power outlet - perfect for vehicles, caravans, or projects.
Sustainable & Smart Design:
North-facing orientation brings in warm winter sun and keeps out harsh summer heat.
Concrete floors and passive design keep the home cooler during the hotter months.
Steel frame, insulated exterior walls and modern finishes reduce maintenance and improve efficiency and longevity.
Location Highlights:
Just a 5 minute walk to local primary school and pre-primary, and 10 minute walk to daycare.
Easy walk to Head Street Oval, nature trails, and Telegraph Station.
Conveniently located near Northside IGA, Bunnings, and a short stroll to Sammy's Pizza.
This home is ideal for singles, couples, families, those new-to-Alice Springs as well as those looking to purchase from interstate and land in a location with all the amenities and comforts. If you are an investor, the property attracts a premium on its rent for its quality and the current high demand for rental properties.
Enquire today and make this modern Alice Springs retreat yours.
The Phone Code for this property is: 89096. Please quote this number when phoning or texting.
Disclaimer:
Whilst every care has been taken to verify the accuracy of the details in this advertisement, For Sale By Owner (forsalebyowner.com.au Pty Ltd) cannot guarantee its correctness. Prospective buyers or tenants need to take such action as is necessary, to satisfy themselves of any pertinent matters.
Features
Bath, Modern Bathroom, Modern Kitchen, Entertainment Area, Garden, Garden Shed, Safe, Close to Parklands, Close to Schools, Air Conditioning, Built-ins, Gas Enabled, Swimming/Lap Pool, Broadband, Dishwasher, Solar Hot Water, Living Area
Need a Home Loan?
Get pre-approved for a home loan within 48 hours. Click Here or more information.
- Last 24 Hours0
- Last 7 Days1
- Last 30 Days14
Views
Contact the Owner
Phone or Text: 0488 847 018
Enter Phone Code: 89096
Enter Phone Code: 89096
"*" indicates required fields