26 Oatgrass Street, Zuccoli, NT 0832
Sold Price Not Disclosed (01 Jun 2024)
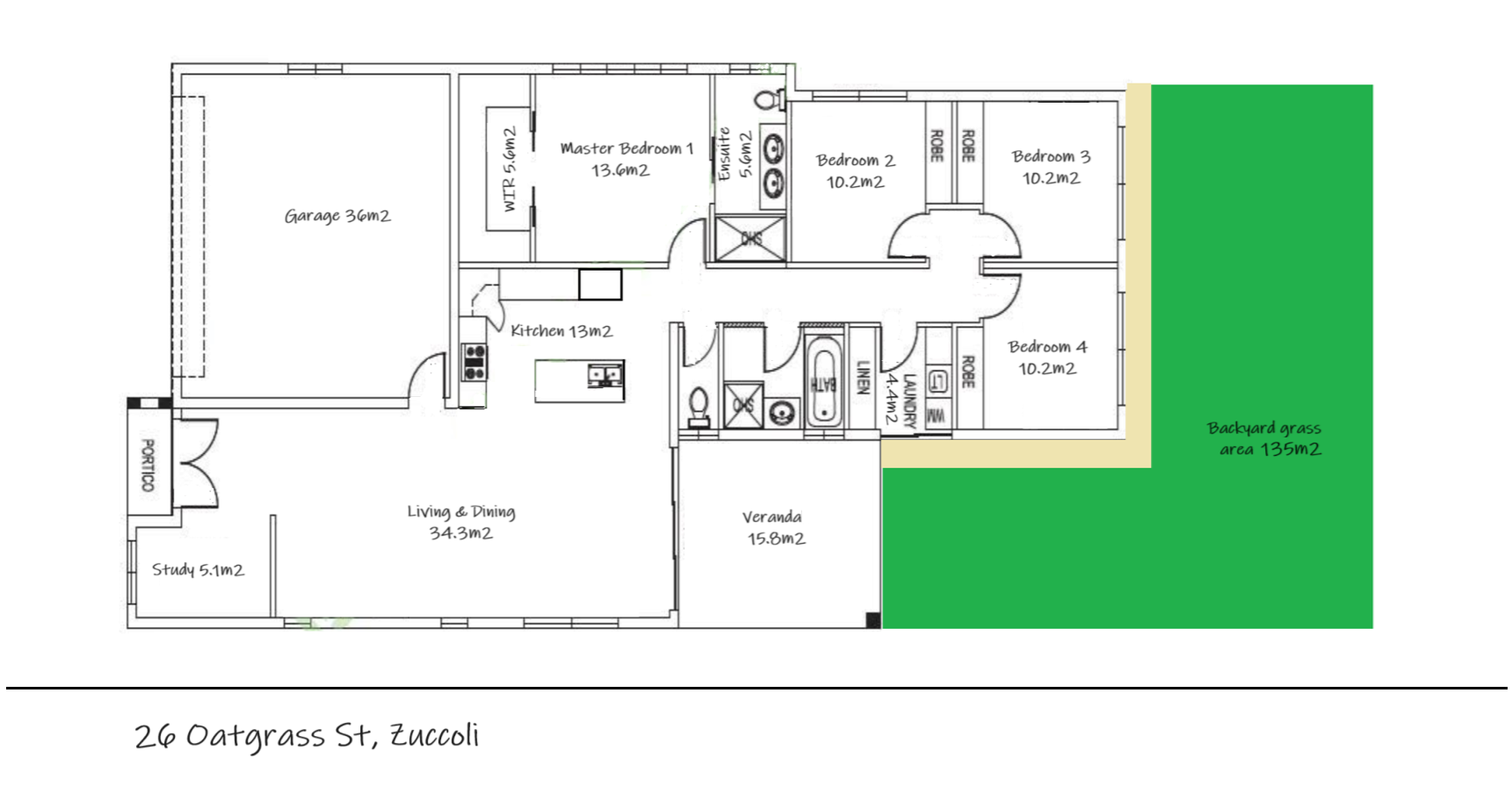
Family home, walking distance to schools, Childcare, IGA Complex and just minutes away from Palmerston CBD.
The Phone Code for this property is: 29450. Please quote this number when phoning or texting.
Perfect home for the family or an Investment. This property is located in ever popular Zuccoli, only moments from the local schools and day care options, plenty of parklands and play areas for the kids and walking paths that wind throughout this master planned suburban setting.
This home is positioned prominently in a quiet court setting with only local traffic passing and offers a large frontage with easy care tropical gardens adding in the WOW factor from the street. A formal front door opens into a home office / studio space filled with natural light and offering streetscape views from the bays of louvered windows.
Further into the home is a tranquil living and dining room with A/C and plush curtains draped over the light filled windows. From the dining room there is a sliding door through to the outdoor entertaining areas with a sheltered veranda that in turn looks out over the backyard with grassy play areas and easy care tropical gardens that screen the fence line to offer privacy from the neighbours.
The kitchen is a show stopper with mirrored splashback over the wrap around counters. There is an island bench with a pop of colour and breakfast bar seating along with a bounty of overhead storage space and a corner pantry plus SS appliances and a freestanding 900 cooktop and oven.
The master bedroom has a pop of colour and includes a generous walk in robe and ensuite bathroom with twin vanity and large glass framed shower. There are three additional bed rooms each with a built in robe and A/C along with large sliding windows to let in the natural light. The main bathroom includes a bath tub and separate shower with a central vanity that includes storage space plus there is a separate toilet as well.
If location is everything then this home has it all - located walking distance from local parks with play areas for the kids, walking paths to explore surrounded with lush landscapes and a community vibe with local markets and evens held at the IGA complex throughout the year.
Key Features:
• Turn key move in ready executive home for the discerning buyer
• Quiet court setting with only local traffic passing the home
• Dual garage parking with driveway and street parking options for guests
• Easy care front yard has screen of tropical gardens and swathes of green lawns
• Formal entry to the home with a home office boasting streetscape views
• Free flowing living and dining areas are tranquil and modern with great flow
• A/C throughout the home for comfortable everyday living
• Kitchen has mirror splashbacks along with an island bench and modern aesthetics
• Plenty of built in storage space in the kitchen with overhead cupboards as well
• Easy flow from the dining room through to the outdoor entertaining areas via sliding doors
• Veranda has a dart board and views over the large backyard and gardens
• Easy care gardens around the home with large swatches of lawns for the kids or pets
• Master bedroom suite with walk in robe and ensuite bathroom
• Twin vanity and large shower for the ensuite
• Main bathroom has a bath tub and shower with a central vanity and sept toilet
• Internal laundry room with linen press storage space and access to the side of the home
• 3 additional bedrooms each with a built in robe and A/C as well
Around the Suburb:
• Ride to a local parks with play areas for the kids
• Primary Schools in Zuccoli are highly sought after, public and private options
• Tavern at Bellamack with kids play area, weekend freak shakes at the Fresh Point Café
• Nearby to major retailers, employment options and takeaway meals
• 3 minutes from the Palmerston CBD, markets throughout the Dry Season
• Local IGA and shops that host markets, food stalls and more
• Active community setting in a master planned suburban setting
Disclaimer:
Whilst every care has been taken to verify the accuracy of the details in this advertisement, For Sale By Owner (forsalebyowner.com.au Pty Ltd) cannot guarantee its correctness. Prospective buyers or tenants need to take such action as is necessary, to satisfy themselves of any pertinent matters.
Perfect home for the family or an Investment. This property is located in ever popular Zuccoli, only moments from the local schools and day care options, plenty of parklands and play areas for the kids and walking paths that wind throughout this master planned suburban setting.
This home is positioned prominently in a quiet court setting with only local traffic passing and offers a large frontage with easy care tropical gardens adding in the WOW factor from the street. A formal front door opens into a home office / studio space filled with natural light and offering streetscape views from the bays of louvered windows.
Further into the home is a tranquil living and dining room with A/C and plush curtains draped over the light filled windows. From the dining room there is a sliding door through to the outdoor entertaining areas with a sheltered veranda that in turn looks out over the backyard with grassy play areas and easy care tropical gardens that screen the fence line to offer privacy from the neighbours.
The kitchen is a show stopper with mirrored splashback over the wrap around counters. There is an island bench with a pop of colour and breakfast bar seating along with a bounty of overhead storage space and a corner pantry plus SS appliances and a freestanding 900 cooktop and oven.
The master bedroom has a pop of colour and includes a generous walk in robe and ensuite bathroom with twin vanity and large glass framed shower. There are three additional bed rooms each with a built in robe and A/C along with large sliding windows to let in the natural light. The main bathroom includes a bath tub and separate shower with a central vanity that includes storage space plus there is a separate toilet as well.
If location is everything then this home has it all - located walking distance from local parks with play areas for the kids, walking paths to explore surrounded with lush landscapes and a community vibe with local markets and evens held at the IGA complex throughout the year.
Key Features:
• Turn key move in ready executive home for the discerning buyer
• Quiet court setting with only local traffic passing the home
• Dual garage parking with driveway and street parking options for guests
• Easy care front yard has screen of tropical gardens and swathes of green lawns
• Formal entry to the home with a home office boasting streetscape views
• Free flowing living and dining areas are tranquil and modern with great flow
• A/C throughout the home for comfortable everyday living
• Kitchen has mirror splashbacks along with an island bench and modern aesthetics
• Plenty of built in storage space in the kitchen with overhead cupboards as well
• Easy flow from the dining room through to the outdoor entertaining areas via sliding doors
• Veranda has a dart board and views over the large backyard and gardens
• Easy care gardens around the home with large swatches of lawns for the kids or pets
• Master bedroom suite with walk in robe and ensuite bathroom
• Twin vanity and large shower for the ensuite
• Main bathroom has a bath tub and shower with a central vanity and sept toilet
• Internal laundry room with linen press storage space and access to the side of the home
• 3 additional bedrooms each with a built in robe and A/C as well
Around the Suburb:
• Ride to a local parks with play areas for the kids
• Primary Schools in Zuccoli are highly sought after, public and private options
• Tavern at Bellamack with kids play area, weekend freak shakes at the Fresh Point Café
• Nearby to major retailers, employment options and takeaway meals
• 3 minutes from the Palmerston CBD, markets throughout the Dry Season
• Local IGA and shops that host markets, food stalls and more
• Active community setting in a master planned suburban setting
Disclaimer:
Whilst every care has been taken to verify the accuracy of the details in this advertisement, For Sale By Owner (forsalebyowner.com.au Pty Ltd) cannot guarantee its correctness. Prospective buyers or tenants need to take such action as is necessary, to satisfy themselves of any pertinent matters.
Features
Balcony/Patio/Terrace, Bath, Modern Bathroom, Modern Kitchen, Entertainment Area, Garden, Close to Parklands, Close to Schools, Close to Shops, Close to Transport, Quiet Location, Air Conditioning, Built-ins, Ensuite, Gas Enabled, Internal Laundry, Remote Garage, Study, Dishwasher, Secure Parking, Solar Hot Water, Living Area, Fully Fenced
Need a Home Loan?
Get pre-approved for a home loan within 48 hours. Click Here or more information.
- Last 24 Hours0
- Last 7 Days0
- Last 30 Days8
Views
Contact the Owner
Phone or Text: 0488 847 018
Enter Phone Code 29450 when prompted.
Enter Phone Code 29450 when prompted.
"*" indicates required fields