13 Noel Ryan Gardens, Gordon, ACT 2906
Sold Price Not Disclosed (05 Aug 2022)
SPACIOUS FAMILY HOME
Comfortable and relaxed living located in the highly sought after Stage 1 Gordon, and close to all life's essentials.
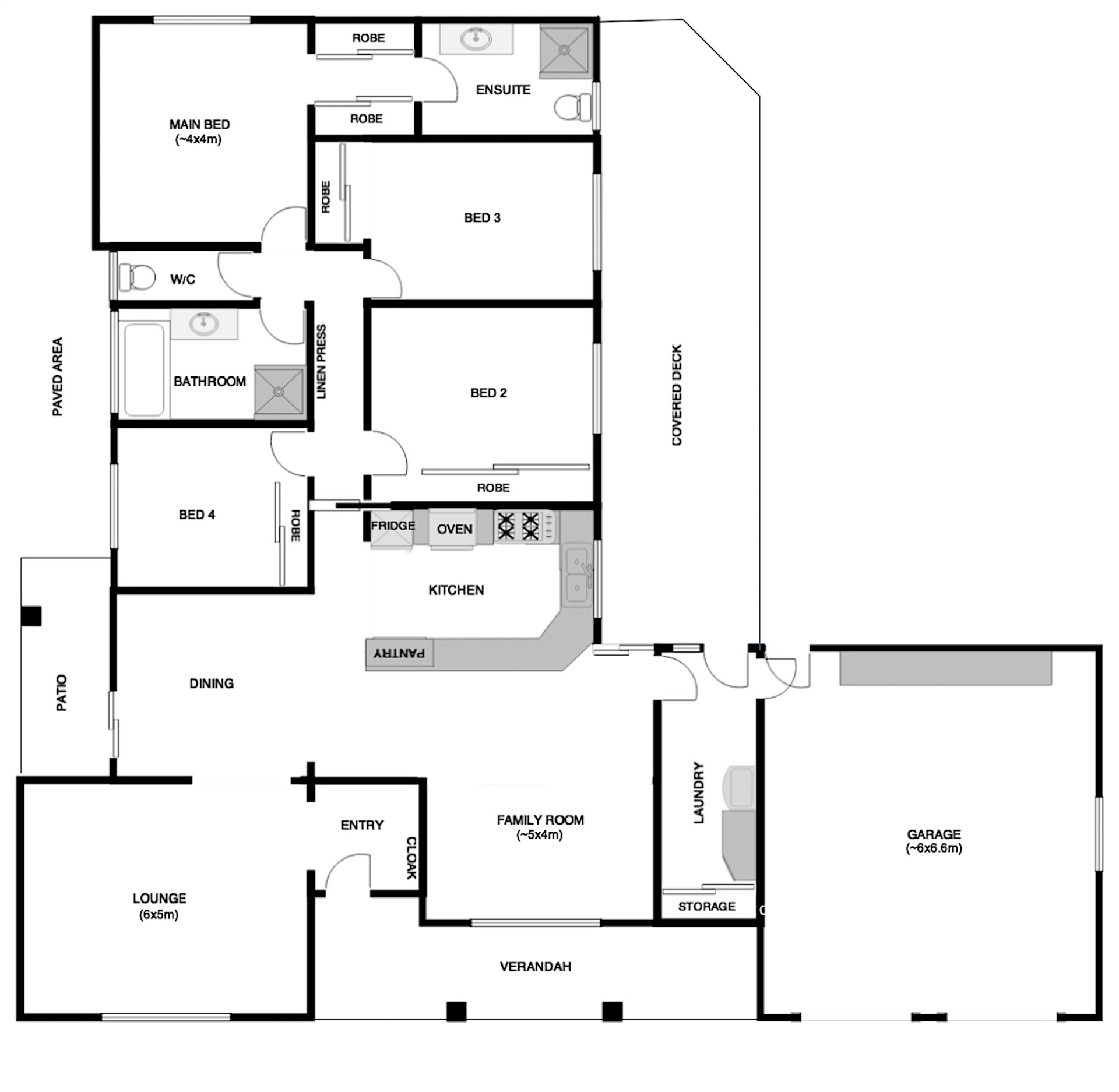
Very private & secure, this generous and well maintained spacious four bedroom ensuite home will delight, and is move in ready with nothing to do.
You'll enjoy being at home in this property situated on the high side of a quiet loop street, with across-the-road access to local park & nature spots, and paths for dog walking, biking, and other health or leisure activities.
Set amongst quality properties in a quiet neighbourhood, and painted with neutral tones throughout, the property boasts updated living, lounge and family rooms, plus connected kitchen featuring an abundance of cupboards and outlook to the large hardwood deck. The large double garage includes internal access and could also be used for additional living space with its own heating and cooling options.
There's plenty of storage too, from the well-sized bedrooms featuring floor to ceiling built-in robes, to the kitchen and great laundry plus 3-cupboard linen press. And there's even an area for a generous study nook or book/hobby collection.
LED lighting is fitted throughout, and a high energy rating means passive solar credentials come built in. Ducted heating and a new energy-efficient split-system top the list for year round comfort, while ceiling fans offer added convenience.
Entertaining is a delight with a generous hardwood deck and separate natural patio complimented with easy care grounds and wrap around paths. The established low maintenance gardens providing year round colour.
The secure backyard provides dual double-gated side access for caravan or the like, and would also suit those with pets or children (or both), with ample off-street parking too.
Ready for moving.
INSPECTION BY APPOINTMENT / OPEN HOUSE.
FEATURES:
- Great sized lounge and family rooms
- Quality carpets installed with easy care floors to common areas
- Spacious master with walk-through dual robes to ensuite
- 3 generous sized bedrooms (2x doubles and 1x single) all with built-in robes
- Good sized kitchen with plenty of storage, 4 door pantry plus dishwasher
- Updated LED lighting throughout
- Big 3 door linen press in hallway
- Laundry with large storage cupboard, built-in hamper, bench & wall storage
- Ducted heating, plus new Split-system air-conditioner
- Ceiling fans to living areas and main bedroom
- Huge covered hardwood deck perfect for entertaining!
- Private, fully fenced, secure & pet friendly rear yard
- Attractive front stone retaining wall with steps
- Low maintenance grounds and gardens
- Large 2-car garage under roof with automatic door fitted & internal access
- Car/boat/caravan accommodation to side
- Close access to bus stops, public paths / recreation, doctors, schools & shopping
- NBN available area for work and streaming services (internal Ethernet throughout)
- Additional heating and air-con in garage (providing further living options)
- Living space: 203sqm approximately (large double garage ~40msq additional)
- Block size 803sqm
QUICK OPTIONS TO:
Local primary and high schools (public + private) 2-5 mins
Local doctors 1 min
Local supermarket 1 min, Woolworths / Aldi supermarkets 3 mins
Town Centre, Mall, Library, Centrelink, Bunnings + shopping precinct 5 mins
ACT Public Health Centre (incl dentist) 5 mins
Indoor Pool and sports stadium 5 mins
Several Government Departments 5 mins
Inspections require general COVID safety precautions. Limit of 2 people per party.
The Phone Code for this property is: 93246. Please quote this number when phoning or texting.
Disclaimer:
Whilst every care has been taken to verify the accuracy of the details in this advertisement, For Sale By Owner (forsalebyowner.com.au Pty Ltd) cannot guarantee its correctness. Prospective buyers or tenants need to take such action as is necessary, to satisfy themselves of any pertinent matters.
Very private & secure, this generous and well maintained spacious four bedroom ensuite home will delight, and is move in ready with nothing to do.
You'll enjoy being at home in this property situated on the high side of a quiet loop street, with across-the-road access to local park & nature spots, and paths for dog walking, biking, and other health or leisure activities.
Set amongst quality properties in a quiet neighbourhood, and painted with neutral tones throughout, the property boasts updated living, lounge and family rooms, plus connected kitchen featuring an abundance of cupboards and outlook to the large hardwood deck. The large double garage includes internal access and could also be used for additional living space with its own heating and cooling options.
There's plenty of storage too, from the well-sized bedrooms featuring floor to ceiling built-in robes, to the kitchen and great laundry plus 3-cupboard linen press. And there's even an area for a generous study nook or book/hobby collection.
LED lighting is fitted throughout, and a high energy rating means passive solar credentials come built in. Ducted heating and a new energy-efficient split-system top the list for year round comfort, while ceiling fans offer added convenience.
Entertaining is a delight with a generous hardwood deck and separate natural patio complimented with easy care grounds and wrap around paths. The established low maintenance gardens providing year round colour.
The secure backyard provides dual double-gated side access for caravan or the like, and would also suit those with pets or children (or both), with ample off-street parking too.
Ready for moving.
INSPECTION BY APPOINTMENT / OPEN HOUSE.
FEATURES:
- Great sized lounge and family rooms
- Quality carpets installed with easy care floors to common areas
- Spacious master with walk-through dual robes to ensuite
- 3 generous sized bedrooms (2x doubles and 1x single) all with built-in robes
- Good sized kitchen with plenty of storage, 4 door pantry plus dishwasher
- Updated LED lighting throughout
- Big 3 door linen press in hallway
- Laundry with large storage cupboard, built-in hamper, bench & wall storage
- Ducted heating, plus new Split-system air-conditioner
- Ceiling fans to living areas and main bedroom
- Huge covered hardwood deck perfect for entertaining!
- Private, fully fenced, secure & pet friendly rear yard
- Attractive front stone retaining wall with steps
- Low maintenance grounds and gardens
- Large 2-car garage under roof with automatic door fitted & internal access
- Car/boat/caravan accommodation to side
- Close access to bus stops, public paths / recreation, doctors, schools & shopping
- NBN available area for work and streaming services (internal Ethernet throughout)
- Additional heating and air-con in garage (providing further living options)
- Living space: 203sqm approximately (large double garage ~40msq additional)
- Block size 803sqm
QUICK OPTIONS TO:
Local primary and high schools (public + private) 2-5 mins
Local doctors 1 min
Local supermarket 1 min, Woolworths / Aldi supermarkets 3 mins
Town Centre, Mall, Library, Centrelink, Bunnings + shopping precinct 5 mins
ACT Public Health Centre (incl dentist) 5 mins
Indoor Pool and sports stadium 5 mins
Several Government Departments 5 mins
Inspections require general COVID safety precautions. Limit of 2 people per party.
The Phone Code for this property is: 93246. Please quote this number when phoning or texting.
Disclaimer:
Whilst every care has been taken to verify the accuracy of the details in this advertisement, For Sale By Owner (forsalebyowner.com.au Pty Ltd) cannot guarantee its correctness. Prospective buyers or tenants need to take such action as is necessary, to satisfy themselves of any pertinent matters.
Need a Home Loan?
Get pre-approved for a home loan within 48 hours. Click Here or more information.
- Last 24 Hours0
- Last 7 Days0
- Last 30 Days2
Views
Contact the Owner
Phone or Text: 0488 847 018
Enter Phone Code: 93246
Enter Phone Code: 93246
"*" indicates required fields