72 Wunderly Circuit, Macgregor, ACT 2615
Sold Price: 400,000 (13 Jan 2016)
A Fantastic House with a Great Location
IMMACULATE three bedroom house with a beautiful rose and flower garden. Ideally located in a quiet street with incredible views of the Brindabella Mountains. The house provides comfort living in quiet area with a great view. Whether you are looking to downsize, your first home or an investment opportunity, this is the house. The house is ready to welcome you with no work needed whatsoever. The area provides fully-sealed footpaths for safe walking and enclosed playgrounds for kids to have fun.
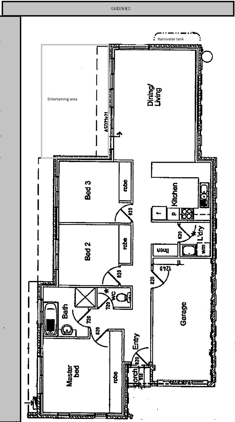
Outside offers a covered entertaining area, fully enclosed very well maintained, weed-free backyard, a garden shed and rainwater tank. The garden features several well-groomed fruit trees and vegetable patches to provide you with your organic summer veggies. Car accommodation is provided by a single garage and three car spaces at the front.
Inside offers a modern open plan design which receives large amounts of natural light throughout the day helping to add space and warmth to all areas of the house. Living area provides a bright feature wall. All three bedrooms offer build in robes with mirror to the main. All windows face north to capture sunlight during winter to keep the house warm. The home insulation provides a cool house during summer days with no need for A/C.
The house is close to amenities and only minutes away from Macgregor Primary School, Kippax Fair shops, Kingsford Smith School, Magpies Golf Course, and just a short drive to Belconnen Town Centre.
FEATURES
* Contemporary design with plenty family living space
* Premium quality paint with feature walls to the living area and master bedroom
* Three well-lit bedrooms with build in robes (mirrors to main)
* Covered entertaining area with a beautiful garden view
* A single garage with internal access
* Main bathroom with bathtub
* Separate toilet
* Gas wall unit in the living room
* Kitchen with a Fisher & Paykel gas cook top
* Enclosed Backyard
* Bright fencing to revitalize the garden
* Easy care low maintenance fully landscaped gardens
* Energy efficient design with EER 5.5
* Solar hot water with electric booster
* Established rose and flower gardens with a massive 2000 litre rainwater tank
* Separate title residence
Private viewing is available by appointment and genuine offers are seriously considered.
Flexible terms of negotiation and settlement.
DON'T MISS IT!
Disclaimer:
Whilst every care has been taken to verify the accuracy of the details in this advertisement, For Sale By Owner (forsalebyowner.com.au Pty Ltd) cannot guarantee its correctness. Prospective buyers or tenants need to take such action as is necessary, to satisfy themselves of any pertinent matters.
Outside offers a covered entertaining area, fully enclosed very well maintained, weed-free backyard, a garden shed and rainwater tank. The garden features several well-groomed fruit trees and vegetable patches to provide you with your organic summer veggies. Car accommodation is provided by a single garage and three car spaces at the front.
Inside offers a modern open plan design which receives large amounts of natural light throughout the day helping to add space and warmth to all areas of the house. Living area provides a bright feature wall. All three bedrooms offer build in robes with mirror to the main. All windows face north to capture sunlight during winter to keep the house warm. The home insulation provides a cool house during summer days with no need for A/C.
The house is close to amenities and only minutes away from Macgregor Primary School, Kippax Fair shops, Kingsford Smith School, Magpies Golf Course, and just a short drive to Belconnen Town Centre.
FEATURES
* Contemporary design with plenty family living space
* Premium quality paint with feature walls to the living area and master bedroom
* Three well-lit bedrooms with build in robes (mirrors to main)
* Covered entertaining area with a beautiful garden view
* A single garage with internal access
* Main bathroom with bathtub
* Separate toilet
* Gas wall unit in the living room
* Kitchen with a Fisher & Paykel gas cook top
* Enclosed Backyard
* Bright fencing to revitalize the garden
* Easy care low maintenance fully landscaped gardens
* Energy efficient design with EER 5.5
* Solar hot water with electric booster
* Established rose and flower gardens with a massive 2000 litre rainwater tank
* Separate title residence
Private viewing is available by appointment and genuine offers are seriously considered.
Flexible terms of negotiation and settlement.
DON'T MISS IT!
Disclaimer:
Whilst every care has been taken to verify the accuracy of the details in this advertisement, For Sale By Owner (forsalebyowner.com.au Pty Ltd) cannot guarantee its correctness. Prospective buyers or tenants need to take such action as is necessary, to satisfy themselves of any pertinent matters.
Need a Home Loan?
Get pre-approved for a home loan within 48 hours. Click Here or more information.
- Last 24 Hours0
- Last 7 Days0
- Last 30 Days1
Views
Contact the Owner
Phone or Text: 0488 847 018
Enter Phone Code:
Enter Phone Code:
"*" indicates required fields