22 Marsden Street, Dickson, ACT 2602
Sold Price: 1,100,700 (27 Jun 2024)
2 Homes On 1 Block - Think Of The Possibilities!
Located on one of the loveliest tree-lined streets of the central and bustling suburb of Dickson is this absolute gem.
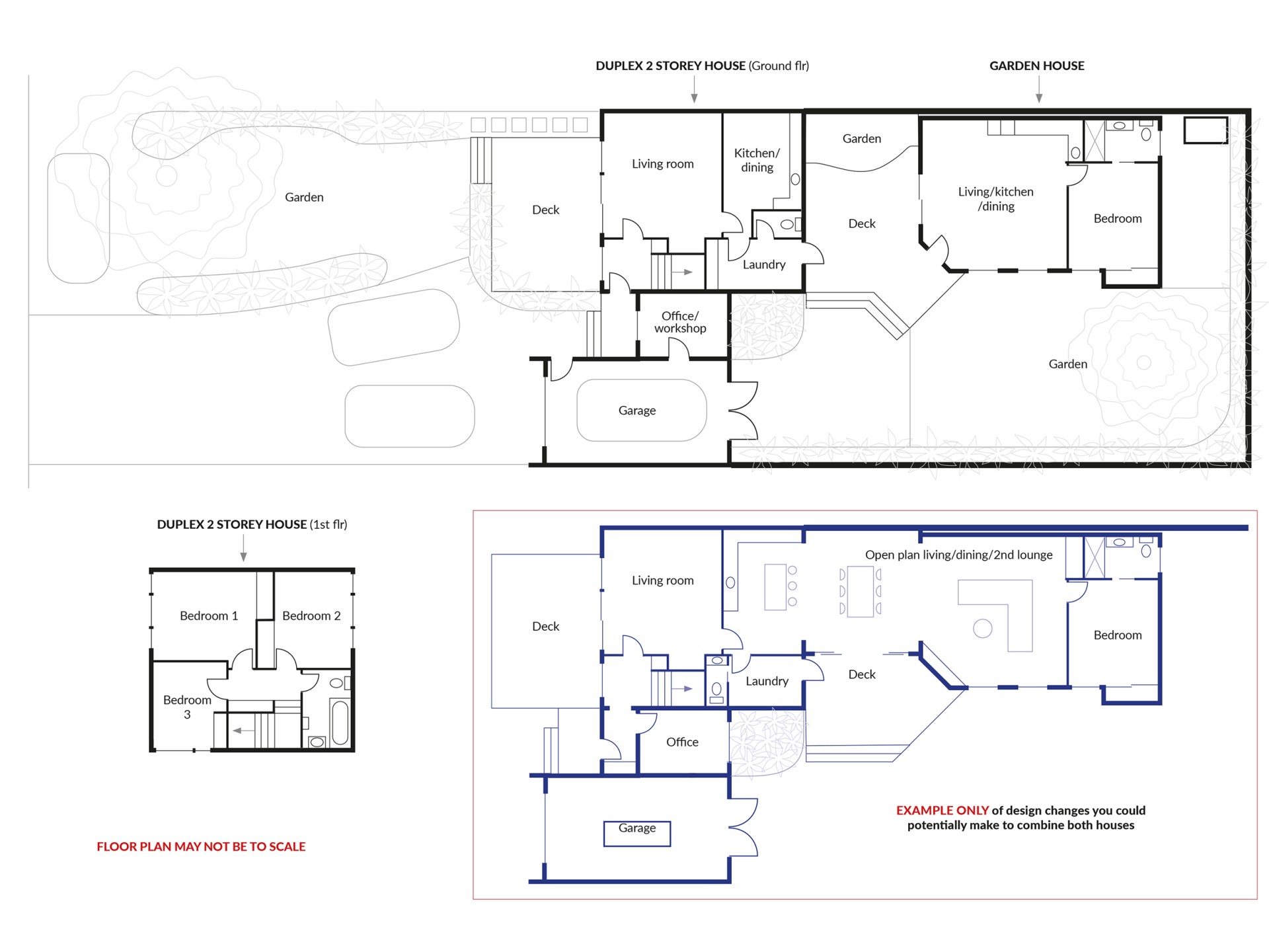
At the front of the block is a gorgeous 3 bedroom 2 storey duplex with oodles of charm, and at the back is a delightful architect designed 1 bedroom house. Each home has its own electricity meter.
As this is a sizeable block there is still plenty of outdoor space, you'll find a tranquil semi-private courtyard at the front as well as a huge deck. At the back is a great sized backyard, and another well-sized deck.
This is a rare opportunity offering so much flexibility, including:
• Using the 1 bedroom garden home as an extension of the main house, for example, as a teenager's or parents retreat or a guest wing
• Renting out one or both of the properties
• Combining both properties. Both properties are on the same ground level and are separated by a deck. There is the possibility to build a small extension to join both houses. This could create a 4 bedroom home with open plan living/dining/kitchen and 2nd living room. On the floor plan is an example of how this may be achieved.
Both properties were recently rented out fully-furnished with great returns, last year the garden house was leased at $460 per week! They are still set up ready to rent, so if you're interested in buying as an investment just let us know and we can negotiate a price including all furniture and contents.
Front house features include:
• 110m2 (includes both ground and 1st floor)
• 3 bedrooms with built-in wardrobes, each room has large windows with lovely views
• Large lounge room with huge windows
• Sliding doors opening out to a large entertaining deck
• Kitchen/dining
• 1 bathroom upstairs
• 1 WC downstairs
• Laundry
• Polished wooden floors
• Large easy care front courtyard
• 16 solar panels
• Reverse-cycle air-conditioner in lounge-room and every bedroom
• Lots of cupboard storage
Garden house features include:
• 57m2
• 1 large bedroom with a built-in wardrobe, large window and beautiful garden view
• Large, light-filled open plan living/kitchen/dining
• Recently renovated kitchen
• A space ready for you to install and plumb a washing machine
• Ensuite with large shower
• Sliding doors opening out to a lovely shaded deck
• Polished wooden floors
• Reverse-cycle air-conditioner in living space
General features include:
• Garage with roll-a-door
• Studio/workshop/office/store room
• Well-sized backyard. The lawn is shaded by a large well-established tree and surrounded by an assortment of plants and foliage
• Garden shed
• Clothesline
• 2 minute walk to North Ainslie Primary school
• 15 minute walk to Dickson College
• 15 minute walk to Dickson Village shops
• 3 minute walk to Dickson Wetlands
• 12 minute drive to the city
If you would like more information don't hesitate to contact me, otherwise I'll see you at our open house this weekend!
The Phone Code for this property is: 21739. Please quote this number when phoning or texting.
Disclaimer:
Whilst every care has been taken to verify the accuracy of the details in this advertisement, For Sale By Owner (forsalebyowner.com.au Pty Ltd) cannot guarantee its correctness. Prospective buyers or tenants need to take such action as is necessary, to satisfy themselves of any pertinent matters.
At the front of the block is a gorgeous 3 bedroom 2 storey duplex with oodles of charm, and at the back is a delightful architect designed 1 bedroom house. Each home has its own electricity meter.
As this is a sizeable block there is still plenty of outdoor space, you'll find a tranquil semi-private courtyard at the front as well as a huge deck. At the back is a great sized backyard, and another well-sized deck.
This is a rare opportunity offering so much flexibility, including:
• Using the 1 bedroom garden home as an extension of the main house, for example, as a teenager's or parents retreat or a guest wing
• Renting out one or both of the properties
• Combining both properties. Both properties are on the same ground level and are separated by a deck. There is the possibility to build a small extension to join both houses. This could create a 4 bedroom home with open plan living/dining/kitchen and 2nd living room. On the floor plan is an example of how this may be achieved.
Both properties were recently rented out fully-furnished with great returns, last year the garden house was leased at $460 per week! They are still set up ready to rent, so if you're interested in buying as an investment just let us know and we can negotiate a price including all furniture and contents.
Front house features include:
• 110m2 (includes both ground and 1st floor)
• 3 bedrooms with built-in wardrobes, each room has large windows with lovely views
• Large lounge room with huge windows
• Sliding doors opening out to a large entertaining deck
• Kitchen/dining
• 1 bathroom upstairs
• 1 WC downstairs
• Laundry
• Polished wooden floors
• Large easy care front courtyard
• 16 solar panels
• Reverse-cycle air-conditioner in lounge-room and every bedroom
• Lots of cupboard storage
Garden house features include:
• 57m2
• 1 large bedroom with a built-in wardrobe, large window and beautiful garden view
• Large, light-filled open plan living/kitchen/dining
• Recently renovated kitchen
• A space ready for you to install and plumb a washing machine
• Ensuite with large shower
• Sliding doors opening out to a lovely shaded deck
• Polished wooden floors
• Reverse-cycle air-conditioner in living space
General features include:
• Garage with roll-a-door
• Studio/workshop/office/store room
• Well-sized backyard. The lawn is shaded by a large well-established tree and surrounded by an assortment of plants and foliage
• Garden shed
• Clothesline
• 2 minute walk to North Ainslie Primary school
• 15 minute walk to Dickson College
• 15 minute walk to Dickson Village shops
• 3 minute walk to Dickson Wetlands
• 12 minute drive to the city
If you would like more information don't hesitate to contact me, otherwise I'll see you at our open house this weekend!
The Phone Code for this property is: 21739. Please quote this number when phoning or texting.
Disclaimer:
Whilst every care has been taken to verify the accuracy of the details in this advertisement, For Sale By Owner (forsalebyowner.com.au Pty Ltd) cannot guarantee its correctness. Prospective buyers or tenants need to take such action as is necessary, to satisfy themselves of any pertinent matters.
Features
Bath, Furnished, Heating, Entertainment Area, Garden, Garden Shed, Pet Friendly, Rainwater Tank, Shower Facilities, Close to Parklands, Close to Schools, Close to Shops, Close to Transport, Quiet Location, Air Conditioning, Built-ins, Ensuite, Internal Laundry, Polished Timber Floors, Remote Garage, Broadband, Courtyard, Workshop, Solar Panels, Living Area, Deck, Fully Fenced
Need a Home Loan?
Get pre-approved for a home loan within 48 hours. Click Here or more information.
- Last 24 Hours0
- Last 7 Days1
- Last 30 Days2
Views
Contact the Owner
Phone or Text: 0488 847 018
Enter Phone Code: 21739
Enter Phone Code: 21739
"*" indicates required fields