61-63 Banner Street, Goldsborough, QLD 4865
Price: Contact agent for Private Inspection
- There are no current opens scheduled.
Open Times
Spacious living with Grand views! Inspection by arrangement.
The Phone Code for this property is: 31860. Please quote this number when phoning or texting.
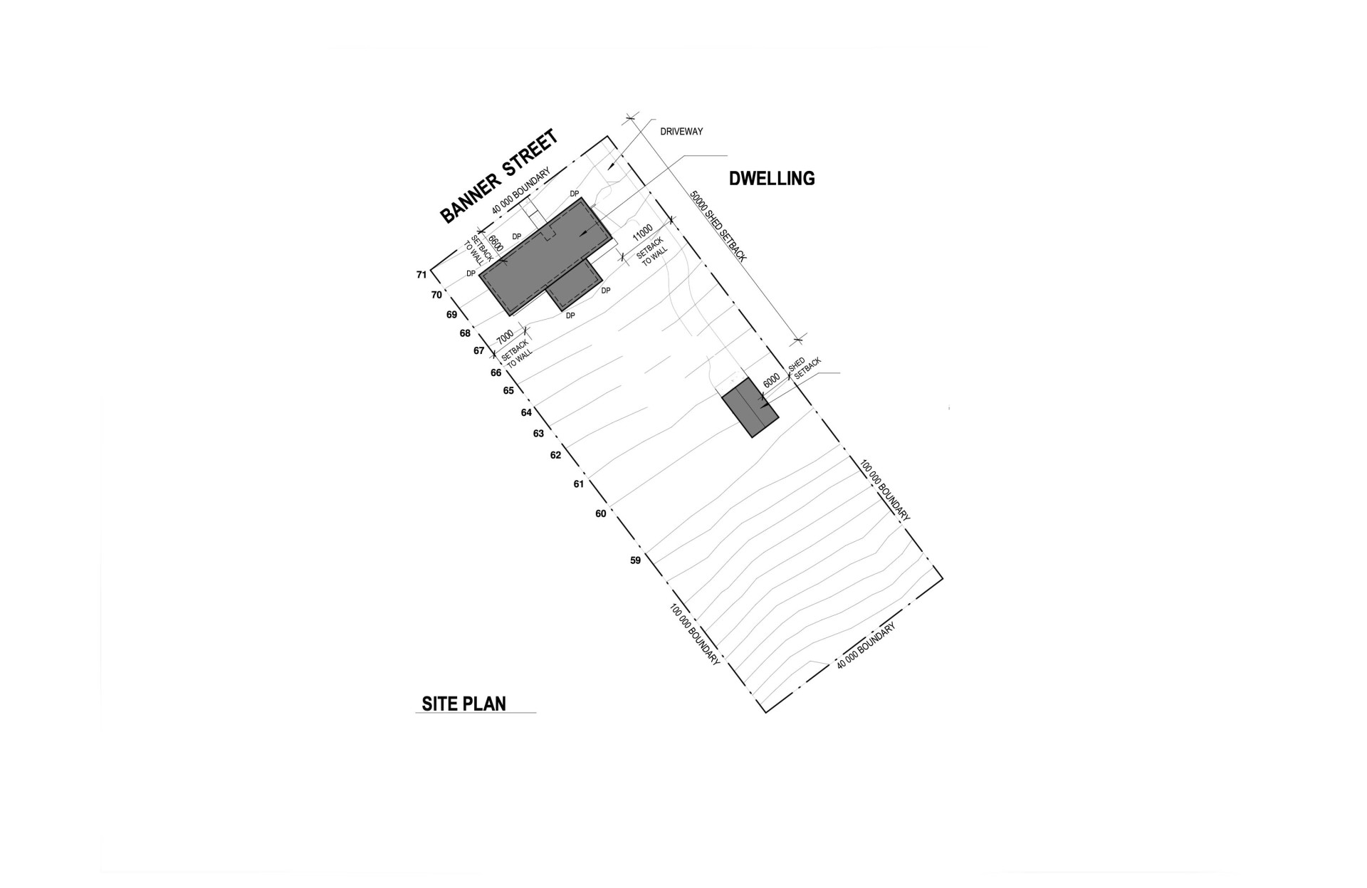
Positioned at the end of a peaceful close with no through traffic, this remarkable 5-bedroom, 3-bathroom residence offers a rare combination of scale, privacy, and prestige. Perfectly designed to capture uninterrupted 180° views of rainforest-covered mountains, this home is more than a residence - it's a lifestyle retreat.
From the moment you step inside, you'll be impressed by the sense of light, scale, and sophistication:
- Soaring high ceilings that enhance space and natural light
- Designer stone bench-tops bringing timeless elegance to the kitchen
- Five bedrooms, including a luxurious oversized master retreat with ensuite and walk-in robe
- Three premium bathrooms with modern finishes
- Expansive living and dining zones flowing seamlessly to multiple outdoor entertaining areas
- Two separate entertainment spaces - perfect for family living or hosting guests
- Large media room for cinema-style experiences
- Double lock-up garage plus a 6m x 6m shed offering versatile options
- Established landscaped gardens with mature fruit trees and lush greenery
- Private creek frontage, creating a serene and picturesque backdrop
- Elevated position capturing breathtaking 180° panoramic views
Disclaimer:
Whilst every care has been taken to verify the accuracy of the details in this advertisement, For Sale By Owner (forsalebyowner.com.au Pty Ltd) cannot guarantee its correctness. Prospective buyers or tenants need to take such action as is necessary, to satisfy themselves of any pertinent matters.
Positioned at the end of a peaceful close with no through traffic, this remarkable 5-bedroom, 3-bathroom residence offers a rare combination of scale, privacy, and prestige. Perfectly designed to capture uninterrupted 180° views of rainforest-covered mountains, this home is more than a residence - it's a lifestyle retreat.
From the moment you step inside, you'll be impressed by the sense of light, scale, and sophistication:
- Soaring high ceilings that enhance space and natural light
- Designer stone bench-tops bringing timeless elegance to the kitchen
- Five bedrooms, including a luxurious oversized master retreat with ensuite and walk-in robe
- Three premium bathrooms with modern finishes
- Expansive living and dining zones flowing seamlessly to multiple outdoor entertaining areas
- Two separate entertainment spaces - perfect for family living or hosting guests
- Large media room for cinema-style experiences
- Double lock-up garage plus a 6m x 6m shed offering versatile options
- Established landscaped gardens with mature fruit trees and lush greenery
- Private creek frontage, creating a serene and picturesque backdrop
- Elevated position capturing breathtaking 180° panoramic views
Disclaimer:
Whilst every care has been taken to verify the accuracy of the details in this advertisement, For Sale By Owner (forsalebyowner.com.au Pty Ltd) cannot guarantee its correctness. Prospective buyers or tenants need to take such action as is necessary, to satisfy themselves of any pertinent matters.
Features
Balcony/Patio/Terrace, Bath, Formal Lounge, Modern Bathroom, Modern Kitchen, BBQ, Entertainment Area, Garden, Garden Shed, Pet Friendly, Shower Facilities, Storage Area, Security Lights, Close to Parklands, Close to Schools, Close to Shops, Near Waterfront, Quiet Location, Views, Absolute Waterfront, Nature Property, Non Smoking, Air Conditioning, Built-ins, Ensuite, Gas Enabled, Internal Laundry, Pay TV Enabled, Remote Garage, Broadband, Dishwasher, Balcony, Secure Parking, Grey Water System, Living Area, Rumpus Room, Deck, Fully Fenced
- Last 24 Hours46
- Last 7 Days310
- Last 30 Days623
Views
Contact the Owner
Phone or Text: 0488 847 018
Enter Phone Code 31860 when prompted.
Enter Phone Code 31860 when prompted.
"*" indicates required fields