17/5 Mitchell Street, Soldiers Point, NSW 2317

Apartment 2 2 2
Price: Price by Negotiation
    Open Times
  • There are no current opens scheduled.
INVESTORS - A RARE OPPORTUNITY TO ACQUIRE A LUCRATIVE AIRBNB IN THE DESIRABLE TOURIST LOCATION OF PORT STEPHENS - OR SIMPLY LIVE IN IT AND ENJOY!
The Phone Code for this property is: 90839. Please quote this number when phoning or texting.

Ready to walk into - High-Performing Established Year-Round Holiday Rental. Fabulous Apartment with Stunning Bay Views and a Koala Hotspot! (Just 30 minutes from Newcastle International Airport).

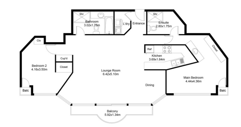
Perched at the very point of picturesque Soldiers Point (they call it the Palm Beach of Port Stephens), and just a few metres from the salty water's edge, this spacious 2 bedroom and 2 bathroom apartment straddles the whole corner of the top floor of the building in an idyllic location. This naturally light-filled 94sqm apartment comes with a generous 36sqm solid brick 2 car lock-up garage and an outdoor pool on site with well-maintained gardens. This apartment provides the very best of coastal living.

For investors, the apartment enjoys a solid track record from short stay holiday rentals averaging 80% occupancy rate all year round.

THE APARTMENT IS ALSO AVAILABLE WITH VACANT POSSESSION IF REQUIRED.

Enjoy spectacular sunrises and commanding water views over the bay and out to the Heads from this spacious apartment situated at tree height to spot koalas and a myriad of birdlife they call home. Be enchanted as you watch dolphins frolic in the bay. Immerse yourself in tranquility, hear the water lapping against the shore opposite. Feel the fresh coastal breezes sweep throughout the home, this is what makes this the ultimate choice to change from the city to the sea.

Surrounded by near-deserted beaches and just a short stroll to the Soldiers Point Marina with renowned restaurants, a café, boat hire facilities and nearby tennis courts. It is a relaxing level walk to Rick Stein's Bannisters and Julio's restaurants and the Cheeky Dog Pub, or the Bowling Club opposite which hosts shows and entertainment all year round, with courtesy bus.

Featuring:
- 2 Bed : 2 Bath : 2 car LUG : Pool : 130sqm (inc garage)
- Ready to walk into spacious open plan living with outlook onto both the bay and the bush reserve
- Split system air conditioning and ceiling fans.
- Modern kitchen with ample cupboard/bench space, stainless steel appliances and induction cooking
- Two spacious bedrooms both overlooking the bay - both with built in wardrobes and ceiling fans.
- Plenty of storage space with 3 x floor to ceiling storage cupboards
- Boasting 2 bathrooms: a spacious main bathroom with shower, small bath and toilet plus an ensuite shower, toilet and sink to the master bedroom.
- Pool in complex and pleasant sunbathing area with water/bay glimpses, surrounded by landscaped and well-maintained gardens and trees
- 36sqm 2-car brick secure remote control double garage adjacent the main entrance.
- Boaties, fishermen and kayakers will enjoy the convenience and proximity of the boat ramp literally around the corner
- Just a very short stroll to the Marina with award-winning The Deck Restaurant, 2317 Restaurant and the Sea Salt marina café literally on the water!
- Approx. 20 minute walk to Bannisters, Julio's, Cheeky Dog pub and Soldiers Point Bowling Club

- Strata Levy is $1,751.80 per quarter - Council Rates $397.35 per quarter

For more information on this fantastic opportunity, get in touch today. Inspections by appointment only.

Disclaimer:

Whilst every care has been taken to verify the accuracy of the details in this advertisement, For Sale By Owner (forsalebyowner.com.au Pty Ltd) cannot guarantee its correctness. Prospective buyers or tenants need to take such action as is necessary, to satisfy themselves of any pertinent matters.
Features

Balcony/Patio/Terrace, Bath, Formal Lounge, Furnished, Heating, Modern Bathroom, Modern Kitchen, Renovated, Renovated Bathroom, Renovated Kitchen, Separate Dining Room, Garden, Shower Facilities, Storage Area, Unlevel Lawn, Security Lights, Security Windows, Close to Parklands, Close to Schools, Close to Shops, Close to Transport, Near Waterfront, Quiet Location, Views, Beach/Coastal Property, Non Smoking, Air Conditioning, Built-ins, Ensuite, Internal Laundry, Pay TV Enabled, Polished Timber Floors, Swimming/Lap Pool, Remote Garage, Broadband, Dishwasher, Balcony, Courtyard, Secure Parking, Living Area

    Need a Home Loan?

    Get pre-approved for a home loan within 48 hours. Click Here or more information.

    Views
  • Last 24 Hours0
  • Last 7 Days17
  • Last 30 Days72
Contact the Owner
Phone or Text: 0488 847 018
Enter Phone Code 90839 when prompted.

"*" indicates required fields