17 Stone Street, Armadale, WA 6112
Price: $2,550,000
- There are no current opens scheduled.
Open Times
House with Distillery Sold as one
The Phone Code for this property is: 20229. Please quote this number when phoning or texting.
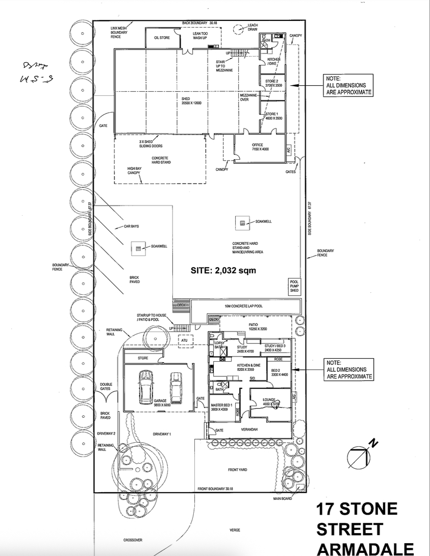
The home
An architecturally designed "Queenslander", fully renovated and fitted out with quality fixtures and fittings throughout This modern home features:
Elegant Jarrah floors with timber skirting
2 large bedrooms with Ceiling fans and full length mirrored robes
Well-appointed formal lounge looking out into the hills.
Modern chef's kitchen with stainless steel Blanco appliances, glass splashback, dishwasher and heaps of cupboard space.
Spacious dining area with TV point.
Home office/3rd bedroom to the rear and adjacent Study area
2 bathrooms at the house and 2 at the distillery
Ducted reverse-cycle air-conditioning throughout
Outdoor entertaining area including the spacious patio area with polished concrete floors and decking, overlooking the crystal clear solar heated lap pool.
Property features
Garage spaces: 2
Land size: 2,031m²
Distillery Building
Warehouse/factory building is 246sqm's in size and consists of:
Production/Bottling/Storage Area
Mezzanine Tasting Room/Viewing Platform Area
Kitchen/Dining, Bathroom, 2 Storerooms which can convert to bedrooms and
Office or shop area.
Lean Too/Washup Area and oil store area
Concrete Hardstand with a High Bay Canopy
Part of the distillery building can be adopted for living accommodation, with an enclosed passageway.
In previous years, paid distillery tours and tastings have been conducted.
Chairlift and ample parking is available for visitors
The sale will include all the equipment to run the distillery business. Pls enquire more info about equipment and stock which are all included in the Sale Price.
Disclaimer:
Whilst every care has been taken to verify the accuracy of the details in this advertisement, For Sale By Owner (forsalebyowner.com.au Pty Ltd) cannot guarantee its correctness. Prospective buyers or tenants need to take such action as is necessary, to satisfy themselves of any pertinent matters.
The home
An architecturally designed "Queenslander", fully renovated and fitted out with quality fixtures and fittings throughout This modern home features:
Elegant Jarrah floors with timber skirting
2 large bedrooms with Ceiling fans and full length mirrored robes
Well-appointed formal lounge looking out into the hills.
Modern chef's kitchen with stainless steel Blanco appliances, glass splashback, dishwasher and heaps of cupboard space.
Spacious dining area with TV point.
Home office/3rd bedroom to the rear and adjacent Study area
2 bathrooms at the house and 2 at the distillery
Ducted reverse-cycle air-conditioning throughout
Outdoor entertaining area including the spacious patio area with polished concrete floors and decking, overlooking the crystal clear solar heated lap pool.
Property features
Garage spaces: 2
Land size: 2,031m²
Distillery Building
Warehouse/factory building is 246sqm's in size and consists of:
Production/Bottling/Storage Area
Mezzanine Tasting Room/Viewing Platform Area
Kitchen/Dining, Bathroom, 2 Storerooms which can convert to bedrooms and
Office or shop area.
Lean Too/Washup Area and oil store area
Concrete Hardstand with a High Bay Canopy
Part of the distillery building can be adopted for living accommodation, with an enclosed passageway.
In previous years, paid distillery tours and tastings have been conducted.
Chairlift and ample parking is available for visitors
The sale will include all the equipment to run the distillery business. Pls enquire more info about equipment and stock which are all included in the Sale Price.
Disclaimer:
Whilst every care has been taken to verify the accuracy of the details in this advertisement, For Sale By Owner (forsalebyowner.com.au Pty Ltd) cannot guarantee its correctness. Prospective buyers or tenants need to take such action as is necessary, to satisfy themselves of any pertinent matters.
From your first property enquiry to final sale, your BAFC settlement agent is there to guide you through the exciting process of selling and purchasing real estate. Call (08) 9335 9133 or email anne@bafc.com.au.
Visit Website- Last 24 Hours3
- Last 7 Days11
- Last 30 Days64
Views
Contact the Owner
Phone or Text: 0488 847 018
Enter Phone Code 20229 when prompted.
Enter Phone Code 20229 when prompted.
"*" indicates required fields
